We focus on indoor and outdoor environment design, brand Vl and product supporting operation services for preschoolsearly education centers, childcare centers, and children's training institutions. We actively explore new models ofchildren's space, starting from the needs of children, let functional courses run through the entire space, so that the space ismore in line with the natural growth law of children.
Preliminary communication: Deeply communicate with the park management to understand the park's philosophy, goals, scale, budget, etc.
On site survey: Conduct on-site inspections of the park environment, evaluate the on-site situation, analyze the surrounding environment, assist the park in determining functional zoning, decoration style, equipment configuration, etc.
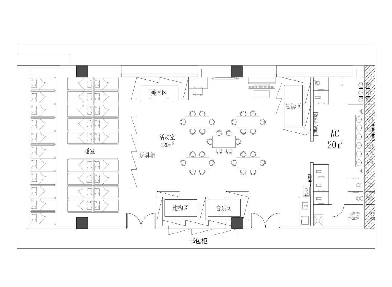
1. Floor plan
Functional zoning: Divide activity rooms, functional rooms, administrative spaces, service management rooms, kitchens, and other functional areas according to the needs of the park, and label the area and location.
Streamline design: Plan a reasonable flow line to ensure that the flow lines of children, teachers, and logistics personnel do not interfere with each other and comply with safety regulations.
Spatial scale: Design appropriate spatial scales according to the "Code for Design of Nursery and Kindergarten Buildings" to create a comfortable and safe environment.
Lighting and ventilation: Consider natural lighting and ventilation to ensure sufficient indoor light and air circulation.

2. Indoor floor plan layout
Furniture arrangement: According to the needs of each functional area, arrange furniture reasonably, such as tables, chairs, beds, toy cabinets, etc., and reserve sufficient activity space.
Regional division: Divide the activity area into different corners, such as reading area, construction area, art area, etc., and equip them with corresponding facilities and materials.
Safety details: Pay attention to the corner treatment of furniture, the position of power sockets, and other safety details to avoid safety hazards.

3. Outdoor floor plan layout
Activity venue: According to the current situation of the venue, it is divided into equipment exercise area, playground, sand pool, water play pool, planting area, etc., to meet the outdoor play needs of young children.
Route design: Adult routes should minimize overlap with child routes, while car routes are strictly prohibited from overlapping or crossing with child routes.
Safety protection: Set up necessary safety protection facilities, such as walls, guardrails, soft mats, etc., to ensure the safety of children's outdoor activities.

Design theme: Determine the design theme of the kindergarten, such as "cultural characteristics", "forest amusement park", "technological future", etc., and design and decorate the space around the theme.
Functional zoning: Based on the theme and the play needs of children of different age groups, incorporating educational concepts and curriculum systems, the space is divided into different functional areas.
Equipment selection: Based on the growth characteristics of children in small, medium, and large classes, appropriate amusement equipment should be set up to meet their 2-hour outdoor play needs.
Furniture configuration: Design furniture that conforms to children's ergonomics, using environmentally friendly and safe materials, with smooth edges to ensure no sharp edges.
Style positioning: Extract core design elements (shape, color, distinctive areas) based on the park's management philosophy, and extract brand visual elements (shape, color) from the logo.

Equipment design: Clarify the functional positioning of the equipment and translate functional requirements into specific design forms.

Equipment details: Design game facilities and indoor furniture in detail, including shape, size, material, color, etc.

Construction drawing design: After confirming the rendering, complete the project construction drawing design, including floor layout, ground paving, ceiling layout, elevation index, etc.
Drawing review: Review the construction drawings to ensure their accuracy and operability.
Construction site briefing: After confirming the construction drawings, deliver the construction drawings and material list, and conduct technical briefing with relevant workers.

Precision machining: Advanced machining equipment and processes are used to ensure the accuracy and quality of the equipment.
Modular assembly: using hidden bolts and anti drop buckles to avoid exposing sharp parts.
Strict quality inspection: Establish a sound quality management system and conduct strict quality inspections on raw materials, components, and finished products.
1. Project construction: carry out decoration and equipment installation according to the installation drawings and technical requirements of the engineering design.
2. On site service: Cooperate with the construction unit to carry out on-site construction and solve problems that arise during the construction process.
3. Completion acceptance: Participate in the completion acceptance of the project to ensure that the project quality meets the design requirements.